Este site utiliza cookies para permitir a mudança de língua e o armazenamento dos seus imóveis favoritos. Ao utilizar este site, concorda que o mesmo utilize cookies.

Moradia em Sesimbra

625.000€




Referência

HMINVEST_PRT_03

Natureza

Venda

Tipo de Imóvel

Moradia

Subtipo de Imóvel

Moradia Isolada

Tipologia

T3

Estado

Em Construção

Certificado energético

A+

Ano

2026


Distrito

Setúbal

Concelho

Sesimbra

Freguesia

Sesimbra (Castelo)

Código Postal

2970


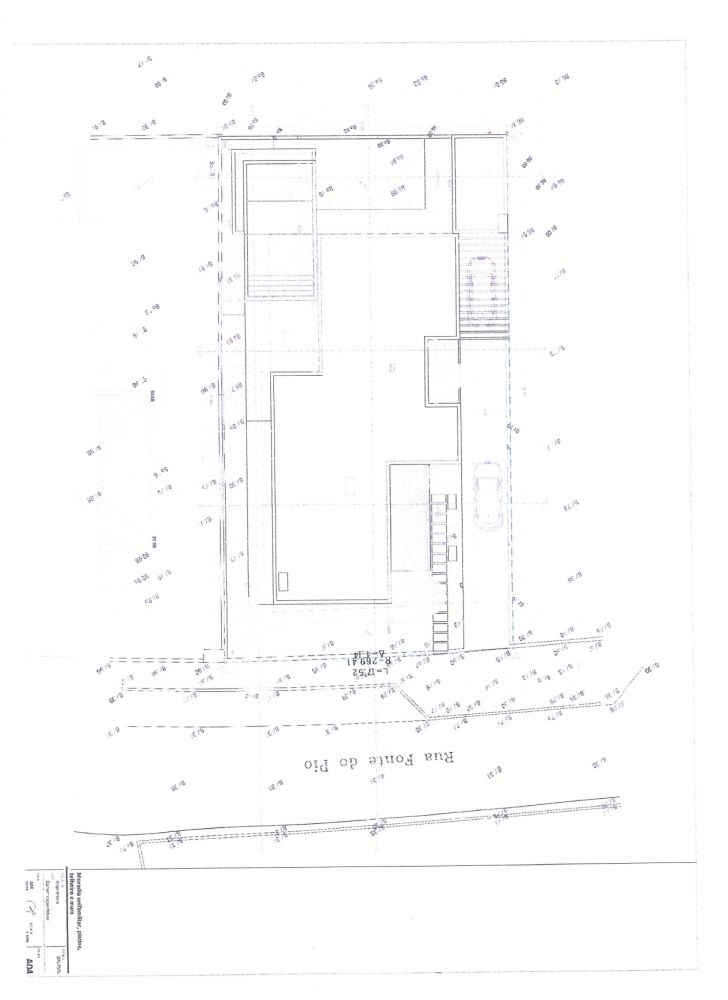
Área Útil

133.85 m2

Área Bruta

165.6 m2

Área de Terreno

553 m2



Contactar Imobiliária

*Preenchimento obrigatório
Ao clicar em 'Enviar', declara que aceita a nossa Política de Privacidade.
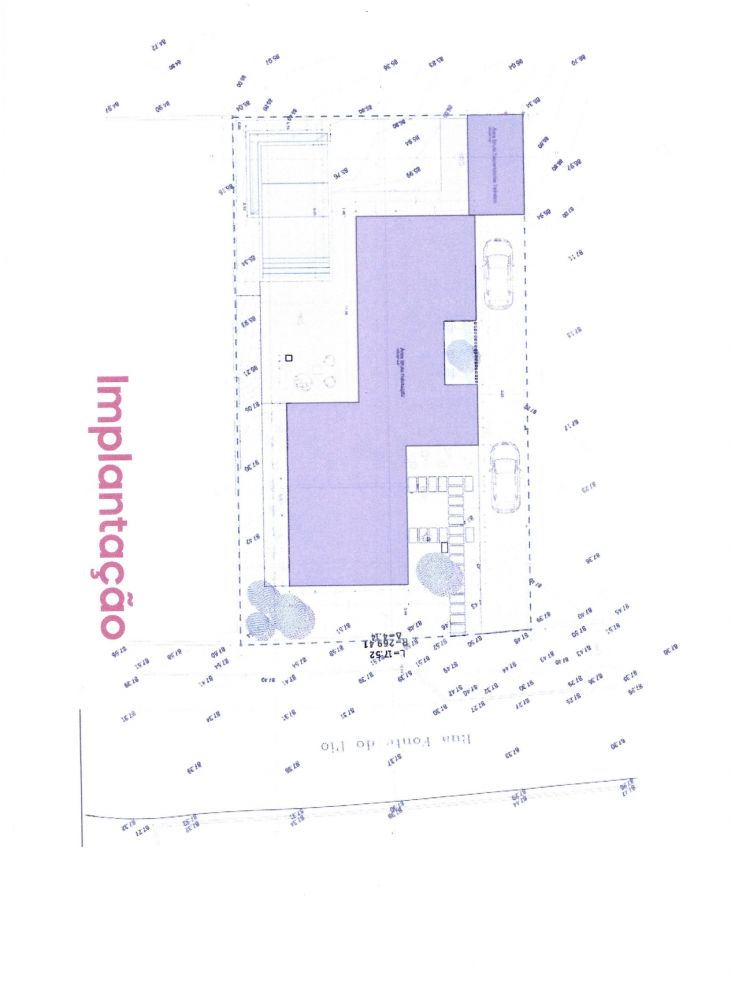
Esta moradia isolada de 225m², atualmente em construção, combina arquitetura contemporânea, privacidade e integração total com a natureza envolvente.

Implantada num lote de 553m², oferece equilíbrio perfeito entre interior sofisticado e exterior pensado para desfrutar.

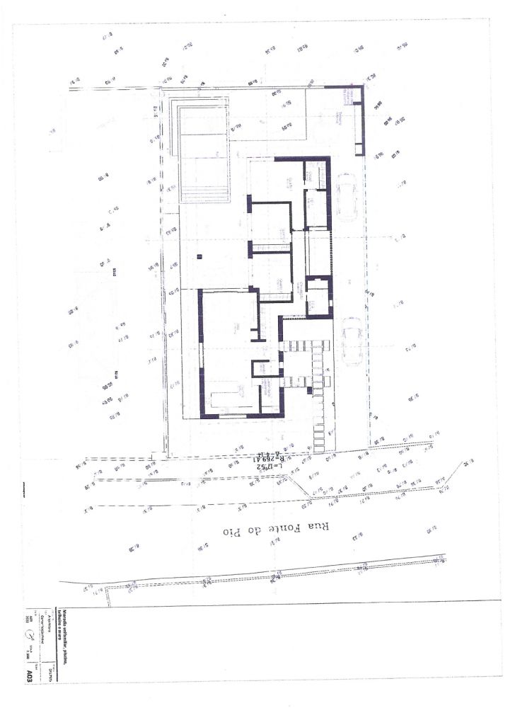
 Interior

Sala ampla com lareira e recuperador de calor

Cozinha moderna

Lavandaria independente

3 casas de banho

Dois quartos luminosos

Uma suite com closet

Hall de circulação funcional e elegante

Cada detalhe foi pensado para conforto absoluto:

✔️ Caixilharia em alumínio com rutura térmica
✔️ Vidros duplos
✔️ Estores elétricos
✔️ Pré-instalação de ar condicionado
✔️ Aspiração central
✔️ Painel solar com termossifão
✔️ Acabamentos de luxo

? Exterior

O espaço exterior convida a viver devagar:

Piscina privativa

Zona de convívio com barbecue

Área de apoio à piscina

Envolvência natural que garante tranquilidade e privacidade

Imagine finais de tarde junto à piscina, jantares de verão ao ar livre e a serenidade de viver perto do mar.

? Localização privilegiada

A poucos minutos das praias de Sesimbra e do Meco, numa zona onde natureza e autenticidade se encontram.

Próxima de:

Parque Augusto Pólvora

Santuário do Cabo Espichel

Castelo de Sesimbra

Fortaleza de Santiago

Museu Marítimo

Jazida de Icnofósseis da Pedreira do Avelino

Miradouro do Portinho da Arrábida (a 30 minutos)

Zona reconhecida pela gastronomia local e qualidade de vida, ideal para residência permanente ou segunda habitação.

Conclusão prevista para Agosto de 2026.
Geral
GeraisNº de Divisões :3
GeraisNº de Casas de Banho:2

Este imóvel não tem áreas definidas.